Kinderhaus Tettnang
Wettbewerb | Kinderhaus Tettnang

Kinderhaus Tettnang
Standort: Tettnang | Bauherr:in: Stadt Tettnang |
Jahr: 2011 | Platzierung: 3.Platz | Bauland: 3.300m²
Das neue Kinderhaus gibt dem aufgebrochenen Stadtgefüge einen neuen Abschluss am Südrand des Quartiers. Die Gliederung des Baukörpers folgt der vorhandenen Bebauungsstruktur und fügt den Neubau in die umgebende Einzelhausbebauung ein.
Zwischen Flieger und Kinderhaus entsteht ein großzügiger Freiraum für den Außenspielbereich der Kinderkrippe und der Ganztagesbetreuung. Das Spatzennest erhält einen eigenen, unabhängigen Außenspielbereich südlich des Gebäudes.
Das Haus entwickelt sich über zwei Geschosse. Die unterschiedlichen Nutzungen wie Spatzennest, Ganztagesgruppen und Krippenbereich erhalten individuelle Bereiche, die über großzügige
Erschließungsflächen zusammengebunden sind.
Mehr
Der große, zusammenhängende Frei- und Spielbereich mit sehr guter Überschaubarkeit erlaubt eine vielseitige Gestaltung mit unterschiedlichen Spiel- und Aufenthaltsqualitäten. Es entstehen
Spielbereiche mit Sandkasten, Wasserstelle, Hügelbereiche mit Rutschen und anderen Attraktionen. Ein Verkehrsparcour und auch multifunktionale Flächen sind integriert.
Alle Gruppenräume im Erdgeschoss verfügen über einen direkten Zugang zu den Außenanlagen und sind über vorgelagerte Terrassen mit dem Außenbereich verzahnt.




Anbau Kiga Abraham Langenargen
Kindergarten | Anbau Kiga Abraham Langenargen

Anbau Kiga Abraham Langenargen
Standort: Langenargen |
Bauherr:in: Ev. Kirchengemeinde Langenargen |
Jahr: 2002/2013 | LPH: 1-8
Die Umstellung des Kindergartenbetriebes auf Ganztagesbetreuung machte die Schaffung eines multifunktionalen Gemeinschaftsraumes, der auch als Speisesaal dient, erforderlich. Ein ursprünglich kleiner Werkraum, der sich zwischen den Gruppenräumen befand wurde in den Garten erweitert.
Dabei waren die Beschränkungen der bestehenden Deckenhöhen eine besondere technische und gestalterische Herausforderung, welche durch eine flache Holzplatten-Bauweise gelöst wurde. Durch den Raum hindurch wurde eine Sichtverbindung vom Eingangsbereiche in den von mächtigen alten Bäumen geprägten Kindergarten geschaffen.
Mehr
2002 Sanierung und Modernisierung
2013 Erweiterung um Mehrzweck-/Speiseraum
Umbauten in der Küche
Umbau der Mitarbeiterwohnung in Ruheraum
Alle Maßnahmen im laufenden Betrieb



Pfingstweid Salem
Wohnungsbau | Inklusives Wohnen Salem

Inklusives Wohnen Salem
Standort: Salem | Bauherr:in: Diakonie Pfingstweid e.V. |
Jahr: 2017 | LPH: 1-8 + SiGeKo | Geschossfläche: 1470 m²
In Mimmenhausen entstand ein Wohngebäude, das konsequent auf die Bedürfnisse eines inklusiven Zusammenlebens ausgerichtet ist. Das Haus bietet 18 Menschen mit unterschiedlichen körperlichen und kognitiven Voraussetzungen – von mehrfach beeinträchtigt bis weitgehend selbstständig – ein neues Zuhause.
Die barrierefreien, rollstuhlgerechten Grundrisse schaffen Lebensräume, die Teilhabe und Selbstbestimmung im Alltag ermöglichen. Das Gebäude gliedert sich in drei großzügige Wohneinheiten, jeweils eine pro Geschoss, die jeweils Platz für sechs Bewohner:innen bieten.
Die Struktur ist klar und gemeinschaftsfördernd: Jede Wohnung verfügt über eine offene Küche als zentralen Kommunikationsort, private Rückzugsräume für jede:n Bewohner:in sowie funktional geteilte Sanitäreinheiten – zwei Personen nutzen jeweils eine Nasszelle. So entsteht ein ausgewogenes Verhältnis aus Individualität und Gemeinschaft, aus Geborgenheit und Selbstständigkeit.
Das Projekt versteht sich als architektonischer Beitrag zur Inklusion – mit einem Raumangebot, das soziale Vielfalt nicht nur ermöglicht, sondern aktiv unterstützt.

Bebauungsplan „Herisesch IV“ Obereisenbach
Stadtplanung | Bebauungsplan „Herisesch IV“ Obereisenbach

Bebauungsplan
„Herisesch IV“ Obereisenbach
Standort: Obereisenbach | Bauherr:in: Stadt Tettnang | Jahr: 2014 | Bauleitplanung | Fläche: 2,0 ha
Bebauungsplan Ramsbach
Stadtplanung | Bebauungsplan Ramsbach

Bebauungsplan Ramsbach
Standort: Tettnang | Bauherr:in: privat | Jahr: 2018 | Vorhabensbezogener Bebauungsplan
Bebauungsplan Amselweg-Lerchenweg
Stadtplanung | Bebauungsplan Amselweg-Lerchenweg

Bebauungsplan
Amselweg-Lerchenweg
Standort: Langenargen |
Bauherr:in: Gemeinde Langenargen | Jahr: 2019/2021 | Fläche: ca. 1,4ha | Nachverdichtung im Bestand
ZF Schleuse
Industriebau | ZF Schleuse

ZF Schleuse
Standort: Xyzxyz | Bauherr:in: ZF Friedrichshafen AG |
Planung: 2024 – 2025 | Fertigstellung: 2025 |
Leistungsphasen: 5-8| BRI: 328,9m³ |
Bauweise: Stahlbau, Sandwichpaneele
Für die ZF Friedrichshafen AG wurde ein funktionaler Anbau im Bestand realisiert, der eine neue Schleuse integriert. Die Maßnahme optimiert interne Abläufe und ermöglicht einen reibungslosen Material- und Personenfluss. Der Anbau fügt sich architektonisch wie technisch nahtlos in die bestehende Struktur ein und wurde im laufenden Betrieb umgesetzt.
Autohaus Felder
Gewerbebau | Autohaus Felder

Umbau und Erweiterung Autohaus Felder
Standort: Tettnang | Bauherr:in: Autohaus Felder |
Jahr: 2004 | LPH: 1-8
Mit dem Umbau und der Erweiterung des Autohauses XY wurde nicht nur Raum für neue Funktionen geschaffen – sondern auch ein klarer architektonischer Auftritt für die Marke entwickelt.
Die Modernisierung umfasste Verkaufsflächen, Servicebereiche und Büroeinheiten und wurde im laufenden Betrieb umgesetzt. Ein offenes Raumkonzept und gezielte Lichtführung schaffen ein zeitgemäßes Kundenerlebnis und optimierte Arbeitsabläufe.
Der Erweiterungsbau fügt sich funktional wie gestalterisch in den Bestand ein und verleiht dem Standort eine klare neue Identität – offen, einladend, markenstark.


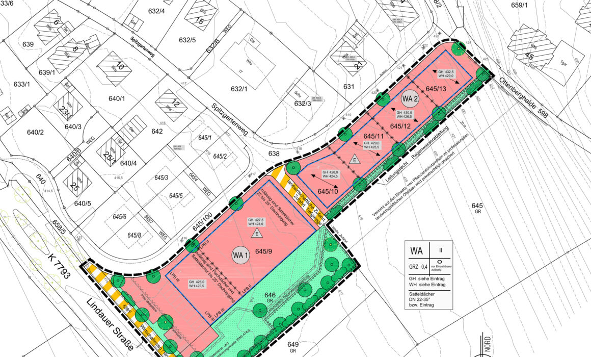
Bebauungsplan Spitzgarten Kressbronn
Stadtplanung | Bebauungsplan Spitzgarten Kressbronn

Bebauungsplan Spitzgarten Kressbronn
Standort: Kressbronn am Bodensee |
Bauherr:in: Gemeinde Kressbronn | Jahr: 2014 |
Fläche: ca. 1,0ha
