Wettbewerb Laurentiustraße Schlier
Wettbewerb | Laurentiustraße Schlier

Wettbewerb Laurentiustraße Schlier
Standort: Schlier, Unterankenreute | Bauherr:in: Gemeinde Schlier |
Jahr: 2018 | Wettbewerbsart: Mehrfachgutachten |
Platzierung: 1.Platz | Planungsgebiet: 31.000m²
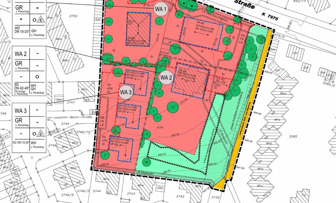
Ein neues Quartier – Wachsen aus dem Bestand
Das neue Baugebiet entwickelt sich behutsam aus der bestehenden Struktur und fügt sich harmonisch in das gewachsene Siedlungsgefüge ein. Bestehende Wegeführungen, Freiraumbeziehungen und Grünstrukturen werden aufgenommen und konsequent weitergedacht. So entsteht ein Quartier, das Vertrautes aufgreift und zugleich mit einer klaren, zeitgemäßen Identität überzeugt.
Ein einfaches, stringentes städtebauliches Konzept bildet die Grundlage des neuen Wohngebiets. Die lockere Einzelhausbebauung an den Rändern schafft fließende Übergänge zur benachbarten Bestandsbebauung und zur offenen Landschaft. Im Inneren entsteht ein verdichteter Kern mit unterschiedlich ausgeprägten Wohnformen, die urbane Dichte und Nachbarschaftsleben fördern.
Mehr
Großzügige öffentliche Räume mit hoher Aufenthaltsqualität unterstreichen den Charakter des Quartiers: Wohnstraßen, Quartiersplätze und vielfältige Grünflächen mit Spiel- und Erholungsangeboten schaffen lebendige Orte für Begegnung und Entfaltung.
Vorgesehen ist vorwiegend eine Bebauung mit Ein- und Zweifamilienhäusern – realisiert als Einzelhäuser, Doppelhäuser, Gartenhofhäuser oder Reihenhäuser. Im zentralen Bereich ermöglichen zusammengefasste Grundstücke auch die Entwicklung von Mehrfamilienhäusern – für ein durchmischtes, zukunftsfähiges Wohnumfeld.














