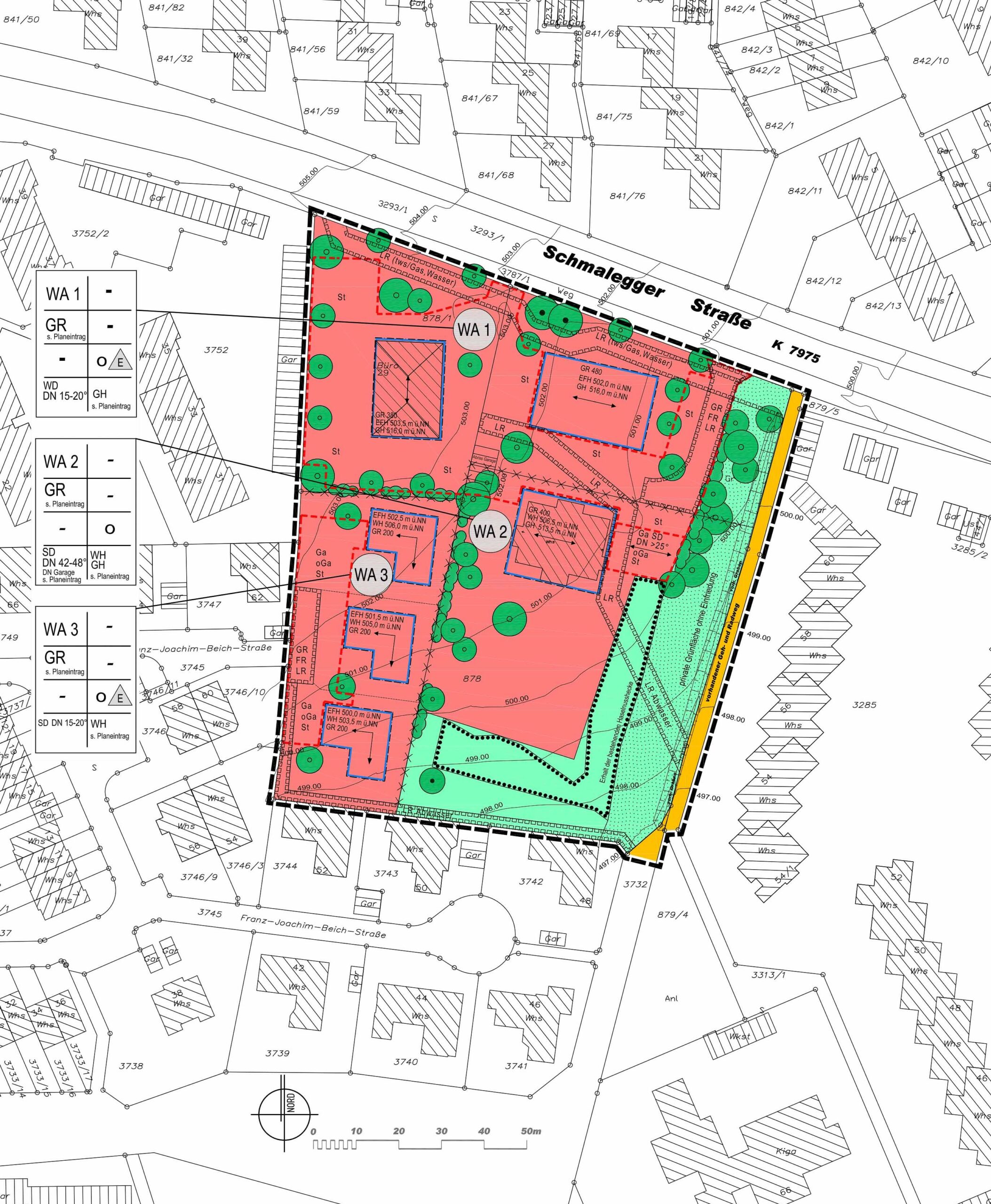
Stadtplanung | Karmeliterhof

Vorhabenbezogener Bebauungsplan
„Karmeliterhof“

Standort: Ravensburg | Bauherr:in: Schnekenburger GmbH | Jahr: 2009

KIENZLE VÖGELE BLASBERG GMBH
Eugenstr. 75
88045 Friedrichshafen

fn@architekten-kvb.de
Telefon 07541 938750
Impressum  | Datenschutz

kvb auf Instagram Folgt uns auf Instagram
kvb auf Linkedin Folgt uns auf Linkedin

Büro
Projekte
News
Kontakt

Privacy Settings
We use cookies to enhance your experience while using our website. If you are using our Services via a browser you can restrict, block or remove cookies through your web browser settings. We also use content and scripts from third parties that may use tracking technologies. You can selectively provide your consent below to allow such third party embeds. For complete information about the cookies we use, data we collect and how we process them, please check our Privacy Policy
Youtube
Consent to display content from - Youtube
Vimeo
Consent to display content from - Vimeo
Google Maps
Consent to display content from - Google